Short Street is only one block long, but is actually named after Bishop Augustus Short (1802-1883), first Anglican Bishop of South Australia and Western Australia, who came to consecrate (the first) St John's Church, 16 November 1848. There is now only one building on the northern side of the street: the former Stateships building. On the southern side, the Post Office is at one end (at the corner with Market Street). The corner at the other (with Pakenham Street) was the site of Charles Manning's Folly, then the Halco Building, and now the five-storey Quest apartments building.
Richard James was licensee of James's Hotel, later Tranby House, which was on Lot 130, in the middle of the south side of Short St.

It is possible that the two-storey stone house in the centre is at what was then 24 Short St, and is therefore the building known in the 1910s as Railway House. Photo from Battye (26778P) from page 100 of John Dowson's Old Fremantle (2003), with his permission.

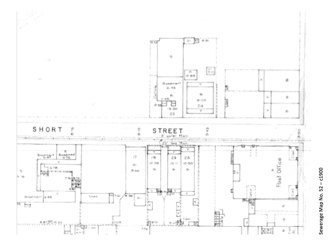
Short Street sewerage map c. 1900, showing 24 on the northern side (courtesy Pam Harris, Fremantle History Librarian)
Dowson, John 2003, Old Fremantle: Photographs 1850-1950, UWAP.
Garry Gillard | New: 8 October, 2015 | Now: 14 January, 2024